Krefeld:
Attraktives Baugrundstück in Krefeld-Linn mit 420 m² für Einfamilienhaus oder Doppelhaushälfte
Objekt-Nr.: 296

Grundstück

Grundstück

Grundstück

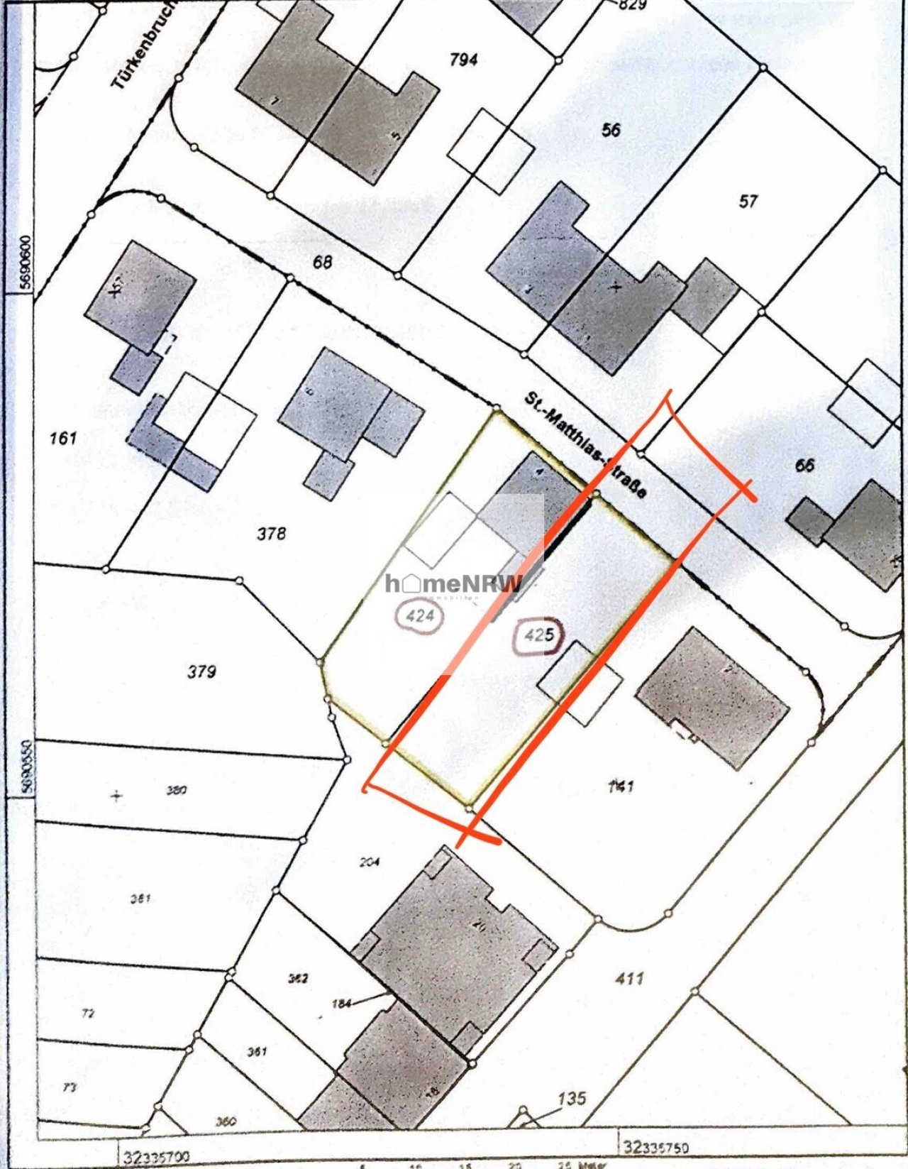
Lageplan




Grundstück ca.:
420 m²
Preis:
160.000 €
Zum Verkauf steht ein attraktives Baugrundstück in begehrter Lage von Krefeld-Linn an der St.-Matthias-Straße. Das ca. 420 m² große Grundstück befindet sich in einer ruhigen, gewachsenen Wohnstraße mit überwiegend Einfamilienhausbebauung.
Das Grundstück ist voll erschlossen und bietet ideale Voraussetzungen für die Realisierung eines individuellen Wohnprojekts. Die Bebauung richtet sich nach der umliegenden Nachbarschaft und ermöglicht die Errichtung eines Einfamilienhauses oder einer Doppelhaushälfte.
Durch die gewachsene Struktur der Umgebung besteht eine hohe Planungssicherheit. Die ruhige Lage kombiniert mit einer guten Infrastruktur macht dieses Grundstück sowohl für Eigennutzer als auch für Kapitalanleger besonders attraktiv.
Nutzungsart: Wohnen
Erschliessung: erschlossen
Bebaubar nach: Bebauung nach Bebauungsplan
Verfügbar ab: Sofort
Provisionspflichtig: ja
Provision: 4,76 % inklusive 19 % Mehrwertsteuer
Bei Abschluss eines Kaufvertrages wird eine Vermittlungs-/ Nachweisprovision in Höhe von 4,76 % inklusive 19 % Mehrwertsteuer auf den Kaufpreis vom Käufer fällig.
Die von uns gemachten Informationen beruhen auf Angaben des Verkäufers bzw. der Verkäuferin. Für die Richtigkeit und Vollständigkeit der Angaben kann keine Gewähr bzw. Haftung übernommen werden. Ein Zwischenverkauf und Irrtümer sind vorbehalten.
AUF WUNSCH empfehlen wir Ihnen Finanzierungsexperten von namhaften Häusern wie der Bausparkasse Mainz, der Deutschen Vermögensberatung und anderen.
Wir weisen auf unsere Allgemeinen Geschäftsbedingungen hin. Durch weitere Inanspruchnahme unserer Leistungen erklären Sie die Kenntnis und Ihr Einverständnis.

Kai Andreas Schaffarczyk
Herr Kai Schaffarczyk
Eisenhüttenstr.5040882 Ratingen
Telefon: +49 2102 5796494
Mobil: +49 172 9544201
